Triplex à vendre, Montréal (Rosemont/La Petite-Patrie)

Vendu

6549-6553, Rue de Bordeaux

Montréal (Rosemont/La Petite-Patrie)

chambre(s) 4 salle(s) de bain 1 salle(s) de bain 8
Photo Isabelle Naud

Isabelle Naud

Courtier immobilier résidentiel et commercial

514 576-1766

No Centris
#22379971
Type de propriété
Triplex
Style de bâtiment
En rangée
Année de construction
1910
Superficie du terrain
212.00 m²
Date d’emménagement
61 jours

Caractéristiques

Zonage
Résidentiel
Toiture
Bitume et gravier
Système d'égouts
Municipal
Stationnement
Extérieur (2)
Sous-sol
6 pieds et plus
Proximité
Transport en commun , École secondaire, École primaire, Piste cyclable, Parc-espace vert, Hôpital, Garderie/CPE, Cegep, Autoroute/Voie rapide
Fondation
Béton coulé
Énergie pour le chauffage
Électricité
Approvisionnement en eau
Municipalité

Dimensions

Façade du terrain
7.73 m
Profondeur du terrain
27.43 m
Superficie du terrain
212.00 m²

Particularités des pièces

Pièces
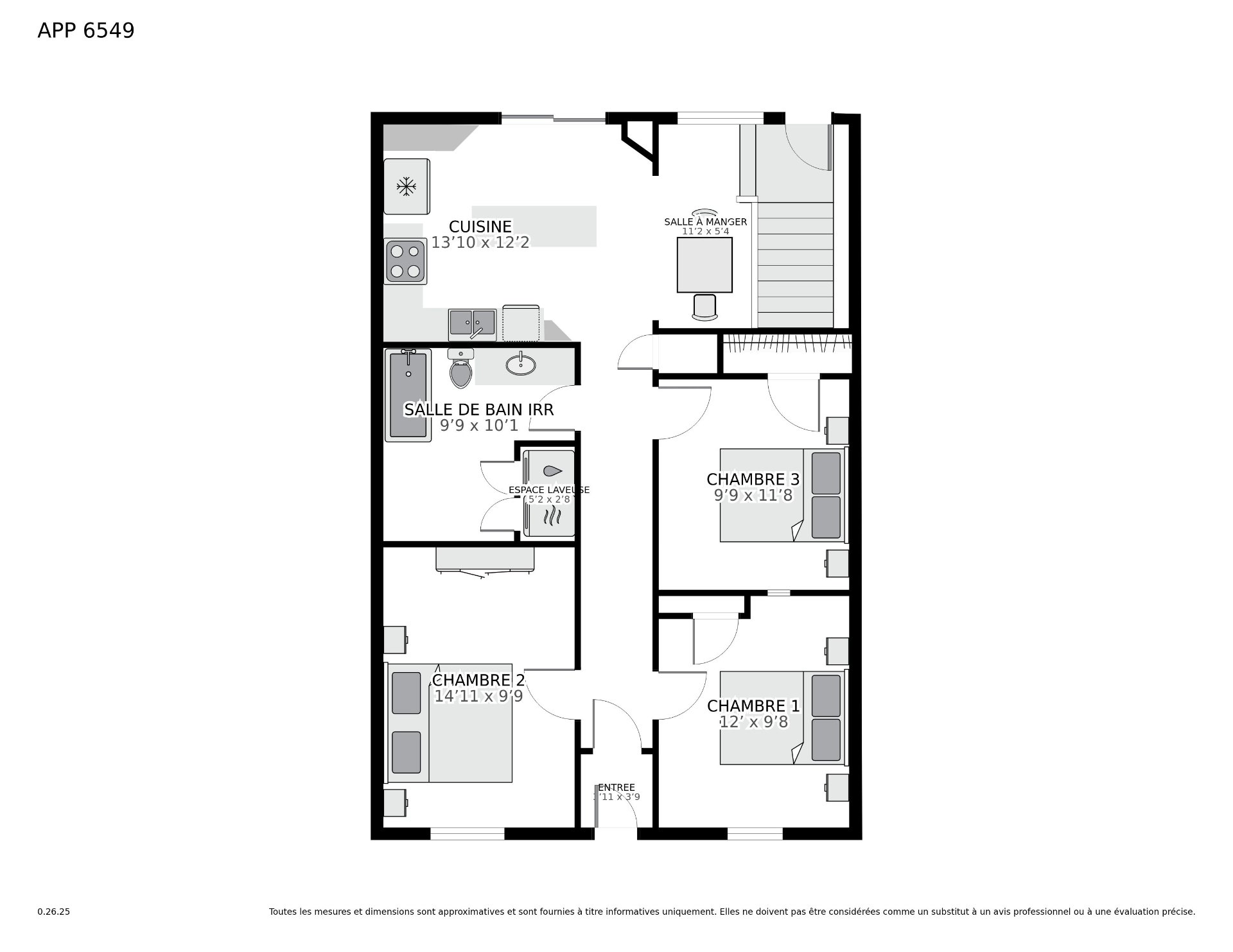
8 pièces    |    4 chambre(s)    |    1 salle(s) de bain    |    0 salle(s) d'eau
Unité 1 - Logement
Hall d'entrée
Rez-de-chaussée
3.11 x 3.9 pi.
Revêtement : Bois
Cuisine
Rez-de-chaussée
13.10 x 12.2 pi.
Revêtement : Céramique
Salle à manger
Rez-de-chaussée
11.2 x 5.4 pi.
Revêtement : Céramique
Chambre à coucher
Rez-de-chaussée
12 x 9.8 pi.
Revêtement : Bois
Chambre à coucher
Rez-de-chaussée
14.11 x 9.9 pi.
Revêtement : Bois
Chambre à coucher
Rez-de-chaussée
9.9 x 11.8 pi.
Revêtement : Bois
Salle de bains
Rez-de-chaussée
9.9 x 10.1 pi. - irrégulier
Revêtement : Céramique
Salle familiale
Sous-sol
21.3 x 17.9 pi.
Revêtement : Tuiles
Chambre à coucher
Sous-sol
11.10 x 9.8 pi.
Atelier
Sous-sol
11.10 x 10.11 pi.
salle mécanique
Sous-sol
8.5 x 6.1 pi.
Rangement
Sous-sol
8.8 x 4.11 pi.
Unité 2 - Logement
Hall d'entrée
2ième étage
4.1 x 3.1 pi.
Revêtement : Bois
Salon
2ième étage
9.8 x 8.5 pi.
Revêtement : Bois
Cuisine
2ième étage
11.9 x 11.7 pi.
Revêtement : Plancher flottant
Chambre à coucher
2ième étage
10.8 x 8.5 pi.
Revêtement : Bois
Salle de bains
2ième étage
5.4 x 4.5 pi.
Revêtement : Céramique
Unité 3 - Logement
Hall d'entrée
2ième étage
4.1 x 3.1 pi.
Revêtement : Bois
Salon
2ième étage
9.8 x 8.5 pi.
Revêtement : Bois
Cuisine
2ième étage
12.5 x 11.6 pi.
Revêtement : Céramique
Chambre à coucher
2ième étage
10.8 x 8.5 pi.
Revêtement : Bois
Salle de bains
2ième étage
5.4 x 4.5 pi.
Revêtement : Céramique

Addenda

Situé au coeur du très prisé quartier Rosemont--La Petite-Patrie, ce triplex représente une occasion unique tant pour un investisseur que pour un futur propriétaire-occupant souhaitant s'établir dans un environnement vivant et recherché.

Le logement principal, réparti sur le rez-de-chaussée et le sous-sol, se distingue par son espace généreux et bien pensé. Il comprend quatre chambres de bonnes dimensions, idéales pour une grande famille ou un aménagement polyvalent (bureau, salle de jeux, etc.). On y retrouve également une grande salle familiale au sous-sol, parfaite pour les moments de détente, ainsi qu'une belle salle de bain complète avec bain et douche séparés, offrant tout le confort recherché au quotidien. La cuisine fonctionnelle et conviviale s'ouvre sur une cour arrière.

Les deux logements à l'étage offrent chacun des espaces de vie agréables et procurent un excellent potentiel de revenu locatif. L'immeuble dispose également de deux places de stationnement, un avantage rare et très apprécié dans ce secteur urbain.

Le quartier de Rosemont séduit par son ambiance à la fois dynamique et chaleureuse. Vous serez à distance de marche de cafés accueillants, de restaurants branchés, de boulangeries artisanales et de commerces de proximité. Les écoles, garderies, parcs verdoyants, ainsi que les nombreuses pistes cyclables et lignes d'autobus facilitent un mode de vie actif et équilibré. L'accès rapide au métro et aux grands axes routiers rend également les déplacements simples et efficaces.

Un immeuble à la fois chaleureux, rentable et stratégiquement situé, offrant une qualité de vie exceptionnelle dans l'un des quartiers les plus prisés de Montréal.

À propos de cette propriété

Situé au coeur du quartier prisé de Rosemont--La Petite-Patrie, ce triplex offre une occasion unique pour investisseur ou propriétaire-occupant. Le logement principal, sur deux niveaux, comprend quatre chambres, une grande salle familiale, une salle de bain avec bain et douche séparés, et une cuisine ouvrant sur la cour arrière. Deux logements à l'étage procurent un excellent potentiel de revenu locatif. Deux stationnements complètent la propriété. À proximité des cafés, restaurants, écoles, parcs et transports en commun.

Vente avec exclusion(s) de garantie légale - Voir courtier(s) inscripteur(s).
Demande d'information

Détails financiers

Annuel
Mensuel
Évaluation municipale (2025)
Bâtiment
468 800 $
Terrain
381 600 $
Taxes
Taxes scolaires (2025)
619 $ 52 $
Taxes municipales (2025)
4 940 $ 412 $
Revenus potentiels bruts
Résidentiels
54 000 $ 4 500 $

Calculateurs

  • Paiement mensuel
  • Taxe de mutation
  • Pouvoir d'achat

Montant des versements mensuels

 

**Le prix affiché n’inclut pas la prime d’assurance SCHL.

Taxe de mutation

 

** Uniquement à titre de référence, pour le montant exact, s'il vous plaît confirmer auprès de la ville ou la municipalité.

Pouvoir d'achat

 

**Le prix affiché n’inclut pas la prime d’assurance SCHL.

Vous aimez cette propriété?Partagez-la!

+

Vos préférences en matière de cookies

Nous utilisons des cookies pour optimiser notre site web et collecter des statistiques d'utilisation.

Politique en matière de cookies