Triplex à vendre, Montréal (Ahuntsic-Cartierville)

Vendu

10593-10597, Av. Bruchési

Montréal (Ahuntsic-Cartierville)

chambre(s) 3 salle(s) de bain 1 salle(s) de bain 5
Photo Isabelle Naud

Isabelle Naud

Courtier immobilier résidentiel et commercial

514 576-1766

No Centris
#24967858
Type de propriété
Triplex
Style de bâtiment
Jumelé
Année de construction
1955
Superficie du terrain
311.80 m²

Caractéristiques

Zonage
Résidentiel
Toiture
Membrane élastomère , Bardeaux d'asphalte
Aménagement du terrain
Clôturé
Système d'égouts
Municipal
Stationnement
Au garage (1) , Extérieur (1)
Sous-sol
6 pieds et plus
Proximité
Transport en commun , École secondaire, École primaire, Piste cyclable, Parc-espace vert, Hôpital, Garderie/CPE, Cegep, Autoroute/Voie rapide
Garage
Simple largeur , Intégré
Fondation
Béton coulé
Énergie pour le chauffage
Électricité
Approvisionnement en eau
Municipalité
Mode de chauffage
Eau chaude
Appareils en location
Chauffe-eau (3)
Allée
Asphalte

Dimensions

Façade du bâtiment
9.00 m
Profondeur du bâtiment
10.38 m
Façade du terrain
11.76 m
Profondeur du terrain
26.52 m
Superficie du terrain
311.80 m²

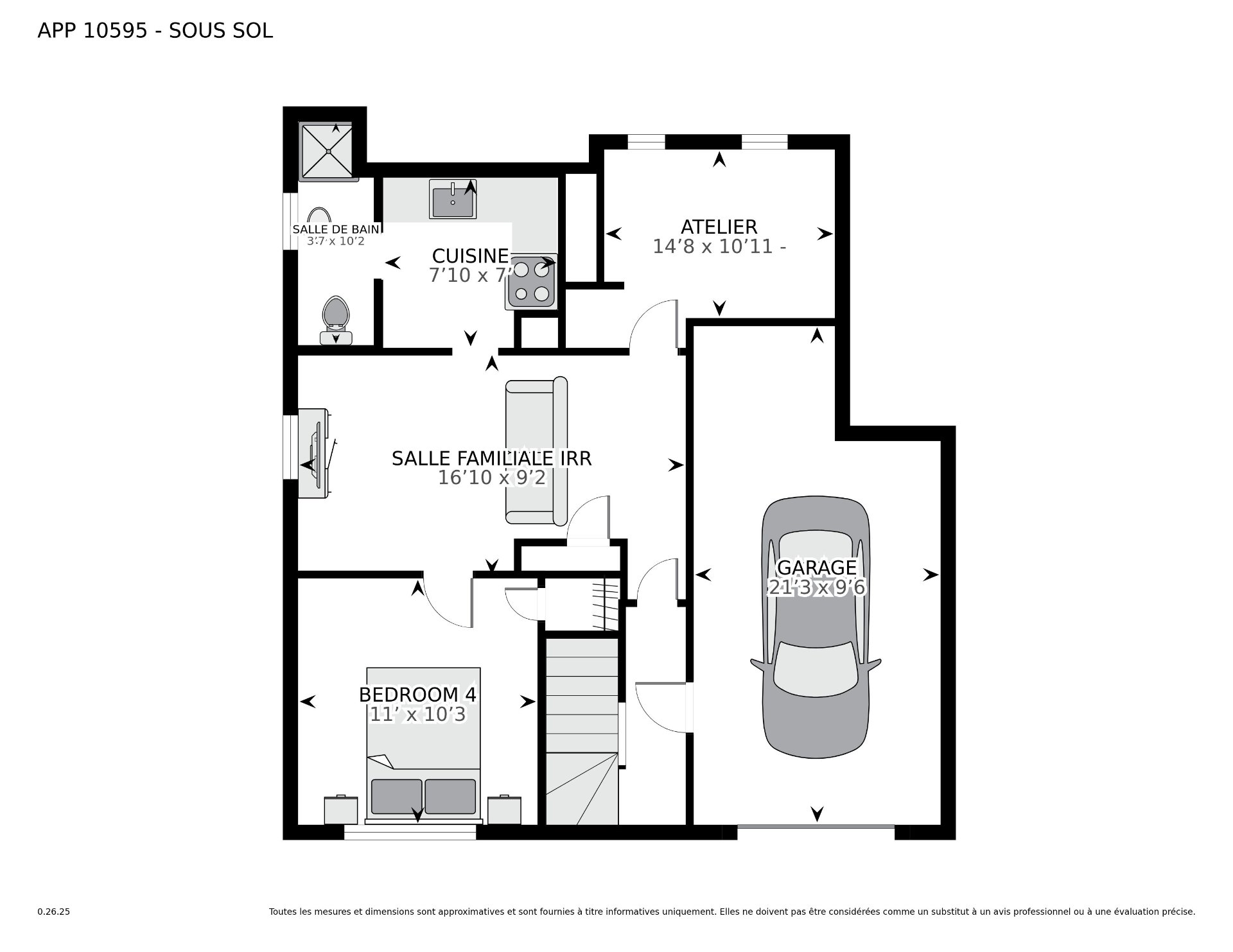
Particularités des pièces

Pièces
5 pièces    |    3 chambre(s)    |    1 salle(s) de bain    |    0 salle(s) d'eau
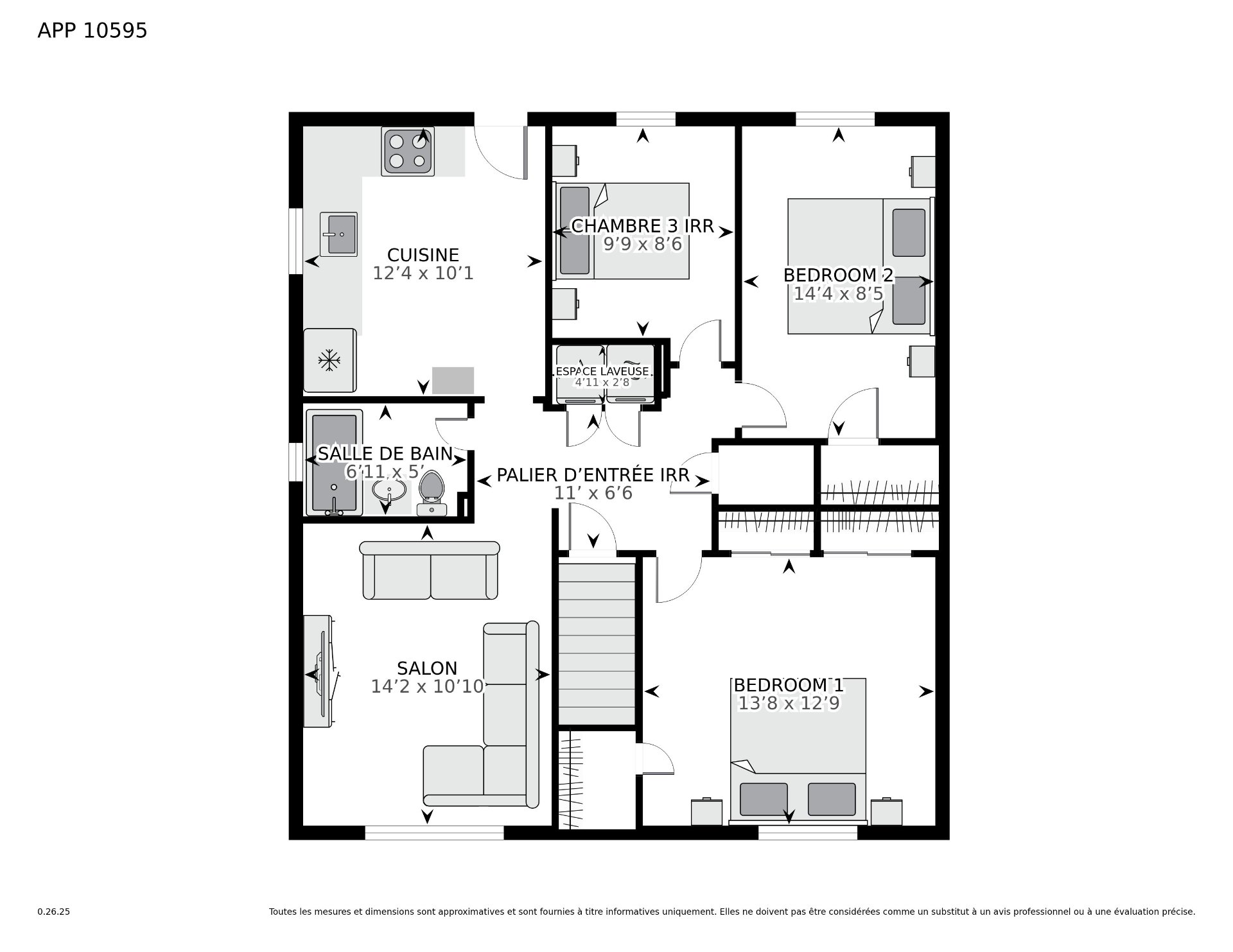
Unité 1 - Logement
Salon
Rez-de-chaussée
14.2 x 10.10 pi.
Revêtement : Bois
Cuisine
Rez-de-chaussée
12.4 x 10.1 pi.
Revêtement : Céramique
Chambre à coucher
Rez-de-chaussée
13.8 x 12.9 pi.
Revêtement : Bois
Chambre à coucher
Rez-de-chaussée
14.4 x 8.5 pi.
Revêtement : Bois
Chambre à coucher
Rez-de-chaussée
9.9 x 8.6 pi. - irrégulier
Revêtement : Bois
Salle de bains
Rez-de-chaussée
6.11 x 5 pi.
Revêtement : Céramique
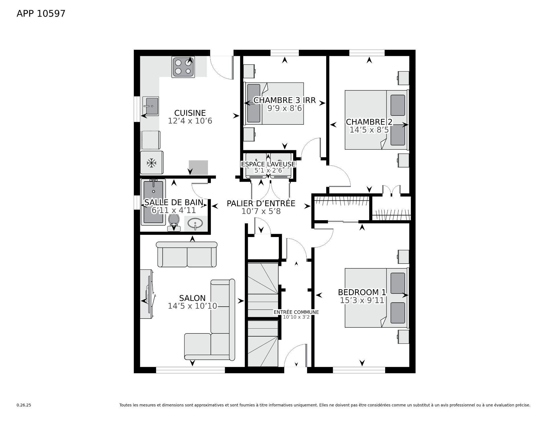
Unité 2 - Logement
Salon
2ième étage
14.5 x 10.10 pi.
Revêtement : Bois
Cuisine
2ième étage
12.4 x 10.6 pi.
Revêtement : Céramique
Chambre à coucher
2ième étage
15.3 x 9.11 pi.
Revêtement : Bois
Chambre à coucher
2ième étage
14.5 x 8.5 pi.
Revêtement : Bois
Chambre à coucher
2ième étage
9.9 x 8.6 pi. - irrégulier
Revêtement : Bois
Salle de bains
2ième étage
6.11 x 4.11 pi.
Revêtement : Céramique
Unité 3 - Logement
Pièces non détaillées

Inclusions

Lave-vaisselle, frigo, cuisinière, laveuse-sécheuse, luminaires, stores, rideaux, outils de jardin.

Exclusions

3 X chauffe-eau loués

Addenda

Situé sur la paisible et verdoyante Avenue Bruchési, au coeur du secteur recherché d'Ahuntsic, ce magnifique triplex offre un cadre de vie privilégié, à proximité du Parc-nature de l'Île-de-la-Visitation et du bord de l'eau.

L'immeuble comprend deux logements spacieux de trois chambres à coucher chacun, au rez-de-chaussée et au deuxième étage, en plus d'un logement supplémentaire au sous-sol, offrant un excellent potentiel locatif. Ce logement est déjà équipé des entrées pour laveuse-sécheuse et cuisinière, offrant ainsi la possibilité d'aménager un appartement complet selon vos besoins.

Chaque logement bénéficie d'une belle luminosité naturelle, de pièces bien proportionnées et d'une configuration fonctionnelle, assurant confort et intimité à ses occupants. Le rez-de-chaussée dispose d'un accès direct à la grande cour arrière, parfaite pour les repas d'été, les jeux d'enfants ou un jardin urbain.

Le garage complète l'ensemble, un atout précieux dans ce secteur.

Son emplacement est tout simplement idéal : à quelques pas du parc-nature de l'Île-de-la-Visitation, un véritable havre de verdure en milieu urbain où se côtoient sentiers pédestres, pistes cyclables et points de vue sur la rivière des Prairies. Vous serez également à proximité de toutes les commodités essentielles : épiceries, pharmacies, cliniques, écoles de renom, collèges réputés et garderies.

À quelques minutes seulement de la Promenade Fleury, vous profiterez de ses cafés, restaurants, boutiques locales et terrasses animées, tout en résidant dans un environnement calme et familial.

Une propriété rare dans un secteur prisé, idéale autant pour un investisseur que pour un propriétaire-occupant souhaitant allier qualité de vie, rentabilité et emplacement de choix.

À propos de cette propriété

Situé sur la paisible Avenue Bruchési, au coeur d'Ahuntsic, ce triplex offre un cadre de vie exceptionnel à deux pas du parc-nature de l'Île-de-la-Visitation et du bord de l'eau. Il comprend deux logements de trois chambres à coucher chacun, ainsi qu'un logement supplémentaire au sous-sol. Garage et grande cour arrière. À proximité des écoles réputées, garderies, commerces, épiceries, pharmacies, cliniques et de la Promenade Fleury. Secteur recherché, idéal pour investisseur ou propriétaire-occupant.

Vente avec exclusion(s) de garantie légale - Voir courtier(s) inscripteur(s).
Demande d'information

Détails financiers

Annuel
Mensuel
Évaluation municipale (2025)
Bâtiment
409 700 $
Terrain
311 800 $
Taxes
Taxes scolaires (2025)
527 $ 44 $
Taxes municipales (2025)
4 223 $ 352 $
Revenus potentiels bruts
Résidentiels
44 760 $ 3 730 $

Calculateurs

  • Paiement mensuel
  • Taxe de mutation
  • Pouvoir d'achat

Montant des versements mensuels

 

**Le prix affiché n’inclut pas la prime d’assurance SCHL.

Taxe de mutation

 

** Uniquement à titre de référence, pour le montant exact, s'il vous plaît confirmer auprès de la ville ou la municipalité.

Pouvoir d'achat

 

**Le prix affiché n’inclut pas la prime d’assurance SCHL.

Vous aimez cette propriété?Partagez-la!

Nouvelles propriétés sur le marché qui pourraient vous intéresser

Vous cherchez la propriété de vos rêves? C’est par ici, et appelez-moi pour en savoir davantage ou planifier une visite !

+

Vos préférences en matière de cookies

Nous utilisons des cookies pour optimiser notre site web et collecter des statistiques d'utilisation.

Politique en matière de cookies