Triplex à vendre, Montréal (Ahuntsic-Cartierville)

1 575 000 $

10615-10619, Av. D'Auteuil

Montréal (Ahuntsic-Cartierville)

chambre(s) 2 salle(s) de bain 2 salle(s) de bain 7
Photo Isabelle Naud

Isabelle Naud

Courtier immobilier résidentiel et commercial

514 576-1766

No Centris
#13398632
Type de propriété
Triplex
Style de bâtiment
Détaché (Isolé)
Année de construction
1954
Superficie du terrain
426.80 m²
Date d’emménagement
30 jours

Caractéristiques

Zonage
Résidentiel
Système d'égouts
Municipal
Stationnement
Au garage (1) , Extérieur (3)
Proximité
Transport en commun , École secondaire, École primaire, Piste cyclable, Parc-espace vert, Hôpital, Garderie/CPE, Cegep, Autoroute/Voie rapide
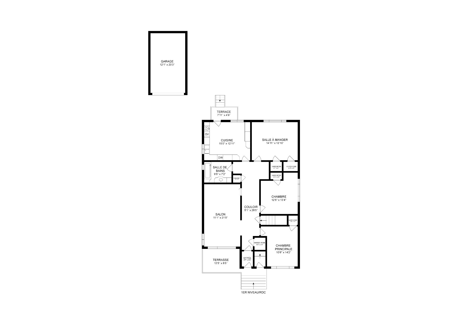
Garage
Simple largeur
Fondation
Béton coulé
Énergie pour le chauffage
Électricité
Approvisionnement en eau
Municipalité

Dimensions

Façade du terrain
15.24 m
Profondeur du terrain
27.81 m
Superficie du terrain
426.80 m²

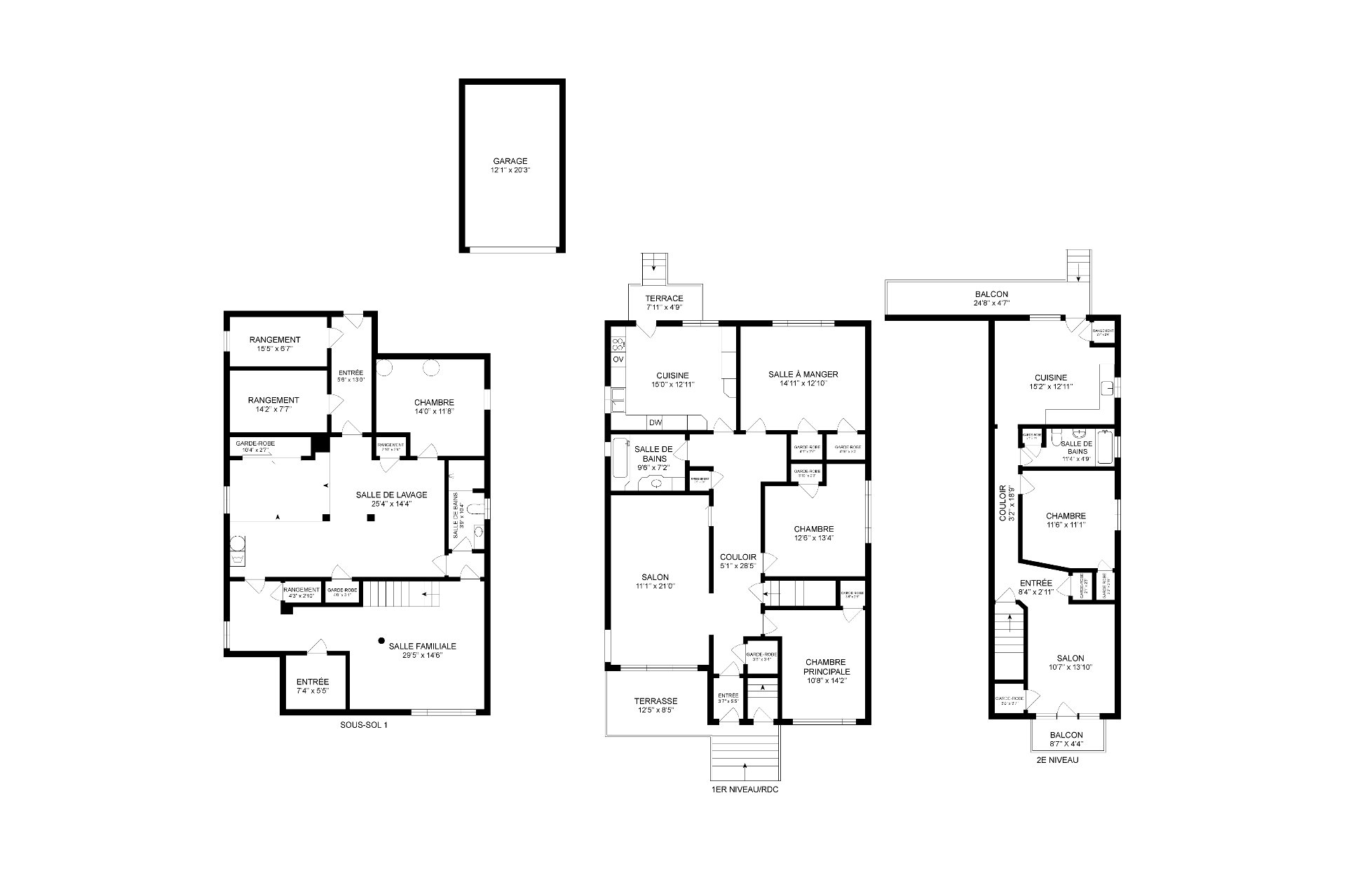
Particularités des pièces

Pièces
7 pièces    |    2 chambre(s)    |    2 salle(s) de bain    |    0 salle(s) d'eau
Unité 1 - Logement
Hall d'entrée
Rez-de-chaussée
3.7 x 5.5 pi.
Revêtement : Tapis
Salon
Rez-de-chaussée
11.11 x 21 pi.
Revêtement : Bois
Cuisine
Rez-de-chaussée
15 x 12.11 pi.
Revêtement : Céramique
Salle à manger
Rez-de-chaussée
14.11 x 12.10 pi.
Revêtement : Bois
Chambre à coucher principale
Rez-de-chaussée
10.8 x 14.2 pi.
Revêtement : Bois
Chambre à coucher
Rez-de-chaussée
12.6 x 13.4 pi.
Revêtement : Bois
Salle de bains
Rez-de-chaussée
9.6 x 7.2 pi.
Revêtement : Céramique
Salle familiale
Sous-sol
29.5 x 14.6 pi.
Revêtement : Linoléum
Atelier
Sous-sol
14 x 11.8 pi.
Revêtement : Béton
Salle de bains
Sous-sol
3.9 x 10.4 pi.
Revêtement : Céramique
Salle de lavage
Sous-sol
25.4 x 14.4 pi.
Revêtement : Céramique
Rangement
Sous-sol
14.2 x 7.7 pi.
Rangement
Sous-sol
12.5 x 6.7 pi.
Hall d'entrée
Sous-sol
7.4 x 5.5 pi.
Revêtement : Linoléum
Hall d'entrée
Sous-sol
5.6 x 13 pi.
Revêtement : Céramique
Unité 2 - Logement
Pièces non détaillées
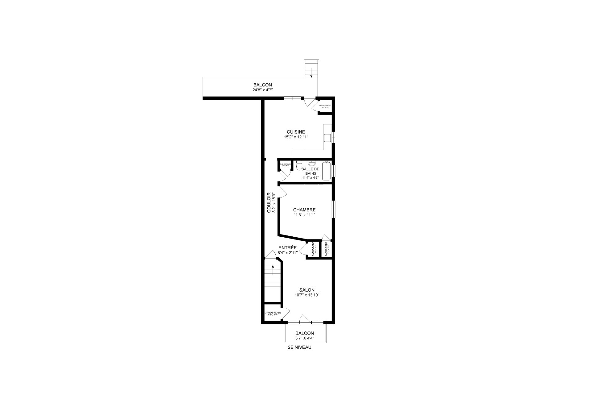
Unité 3 - Logement
Hall d'entrée
2ième étage
8.7 x 2.11 pi.
Revêtement : Tapis
Salon
2ième étage
10.7 x 13.10 pi.
Revêtement : Bois
Cuisine
2ième étage
15.2 x 12.11 pi.
Revêtement : Tapis

avec salle à manger
Chambre à coucher
2ième étage
11.6 x 11.11 pi.
Revêtement : Bois
Salle de bains
2ième étage
11.4 x 4.9 pi. - irrégulier
Revêtement : Céramique

Inclusions

Frigo, cuisinière, lave-vaisselle, luminaires, habillages de fenêtres.

Addenda

Découvrez ce triplex détaché situé au 10615-10619 avenue d'Auteuil, sur l'une des rues les plus prestigieuses d'Ahuntsic, une propriété de choix offrant un équilibre parfait entre espace, luminosité et potentiel d'investissement. Entièrement libre à l'acheteur, il offre une rare flexibilité. Que vous soyez à la recherche d'un immeuble pour propriétaire occupant ou d'un placement judicieux, cette propriété saura répondre à toutes vos attentes.

L'unité principale, spacieuse et chaleureuse, se distingue par ses grandes pièces baignées de lumière naturelle. Le sous-sol ajoute un espace polyvalent considérable, parfait pour une salle familiale, un bureau à domicile, une salle de jeux ou même du rangement supplémentaire selon vos besoins. Cette unité bénéficie également d'un accès direct à la cour arrière, offrant un cadre de vie agréable et intime.

À l'étage, vous trouverez deux logements de type 3 1/2, bien divisés et lumineux, offrant un excellent potentiel locatif. Ces unités représentent une opportunité intéressante pour générer des revenus supplémentaires tout en conservant un espace principal généreux pour y habiter.

À l'extérieur, la propriété propose une belle cour arrière, idéale pour profiter des belles saisons, jardiner ou aménager un espace détente. Un garage vient compléter l'ensemble, un atout indéniable en milieu urbain, tant pour le stationnement que pour le rangement.

L'emplacement est tout simplement exceptionnel. Située dans un secteur prisé d'Ahuntsic, cette propriété bénéficie d'un environnement paisible et familial tout en étant à proximité de tous les services essentiels. À quelques minutes de la très recherchée Promenade Fleury, vous aurez accès à une multitude de cafés, restaurants, terrasses, épiceries fines et commerces locaux qui font la renommée du quartier.

Le secteur est également reconnu pour la qualité de ses écoles, ses nombreuses garderies et ses collèges réputés, ce qui en fait un choix idéal pour les familles. Les amateurs de plein air apprécieront la proximité de plusieurs parcs, espaces verts et pistes cyclables, parfaits pour les promenades et les activités extérieures.

De plus, l'accès au transport en commun est facile et rapide, vous permettant de rejoindre aisément les grands axes et le centre-ville.

Une propriété rare sur le marché, offrant de multiples possibilités dans un quartier recherché. Une occasion à ne pas manquer!

À propos de cette propriété

Découvrez ce triplex détaché situé au 10615-10619 avenue d'Auteuil, sur l'une des rues les plus prestigieuses d'Ahuntsic. Entièrement libre à l'acheteur, il offre une rare flexibilité. L'unité principale, spacieuse et lumineuse, propose de grandes pièces ainsi qu'un sous-sol polyvalent avec accès à la cour. À l'étage, deux logements 3 1/2 bien aménagés offrent un excellent potentiel locatif. Belle cour arrière, garage et emplacement recherché près de la Promenade Fleury, des écoles, parcs et transports.

Vente avec exclusion(s) de garantie légale - Voir courtier(s) inscripteur(s).
Demande d'information

Détails financiers

Annuel
Mensuel
Évaluation municipale (2026)
Bâtiment
486 500 $
Terrain
665 800 $
Taxes
Taxes scolaires (2026)
950 $ 79 $
Taxes municipales (2026)
7 494 $ 625 $
Revenus potentiels bruts
Résidentiels
58 800 $ 4 900 $

Calculateurs

  • Paiement mensuel
  • Taxe de mutation
  • Pouvoir d'achat

Montant des versements mensuels

 

**Le prix affiché n’inclut pas la prime d’assurance SCHL.

Taxe de mutation

 

** Uniquement à titre de référence, pour le montant exact, s'il vous plaît confirmer auprès de la ville ou la municipalité.

Pouvoir d'achat

 

**Le prix affiché n’inclut pas la prime d’assurance SCHL.

Vous aimez cette propriété?Partagez-la!

Nouvelles propriétés sur le marché qui pourraient vous intéresser

Vous cherchez la propriété de vos rêves? C’est par ici, et appelez-moi pour en savoir davantage ou planifier une visite !

+

Vos préférences en matière de cookies

Nous utilisons des cookies pour optimiser notre site web et collecter des statistiques d'utilisation.

Politique en matière de cookies