Maison à paliers multiples à vendre, Montréal (Ahuntsic-Cartierville)

888 000 $

12035, Place Cléophas-Soucy

Montréal (Ahuntsic-Cartierville)

chambre(s) 4 salle(s) de bain 3 salle(s) de bain 8
Photo Isabelle Naud

Isabelle Naud

Courtier immobilier résidentiel et commercial

514 576-1766

No Centris
#16930915
Type de propriété
Maison à paliers multiples
Style de bâtiment
Détaché (Isolé)
Année de construction
1958
Superficie du terrain
414.70 m²
Date d’emménagement
30 jours

Caractéristiques

Zonage
Résidentiel
Toiture
Bardeaux d'asphalte
Système d'égouts
Municipal
Stationnement
Au garage (1) , Extérieur (2)
Sous-sol
Totalement aménagé , 6 pieds et plus
Proximité
Transport en commun , École secondaire, École primaire, Piste cyclable, Parc-espace vert, Hôpital, Garderie/CPE, Cegep, Autoroute/Voie rapide
Garage
Simple largeur , Intégré
Fondation
Béton coulé
Énergie pour le chauffage
Électricité
Approvisionnement en eau
Municipalité
Appareils en location
Chauffe-eau (1)
Allée
Asphalte

Dimensions

Façade du terrain
15.24 m
Profondeur du terrain
25.91 m
Superficie du terrain
414.70 m²

Particularités des pièces

Pièces
8 pièces    |    4 chambre(s)    |    3 salle(s) de bain    |    0 salle(s) d'eau
Salon
Rez-de-chaussée
25 x 12.4 pi.
Revêtement : Bois
Cuisine
Rez-de-chaussée
12.6 x 12 pi.
Revêtement : Céramique

avec salle à manger
Chambre à coucher
Rez-de-chaussée
12.6 x 10.1 pi.
Revêtement : Bois
Chambre à coucher
Rez-de-chaussée
9.11 x 9.4 pi.
Revêtement : Bois
Chambre à coucher
Rez-de-chaussée
12.8 x 9.2 pi.
Revêtement : Bois
Salle de bains
Rez-de-chaussée
6.10 x 5 pi.
Revêtement : Céramique
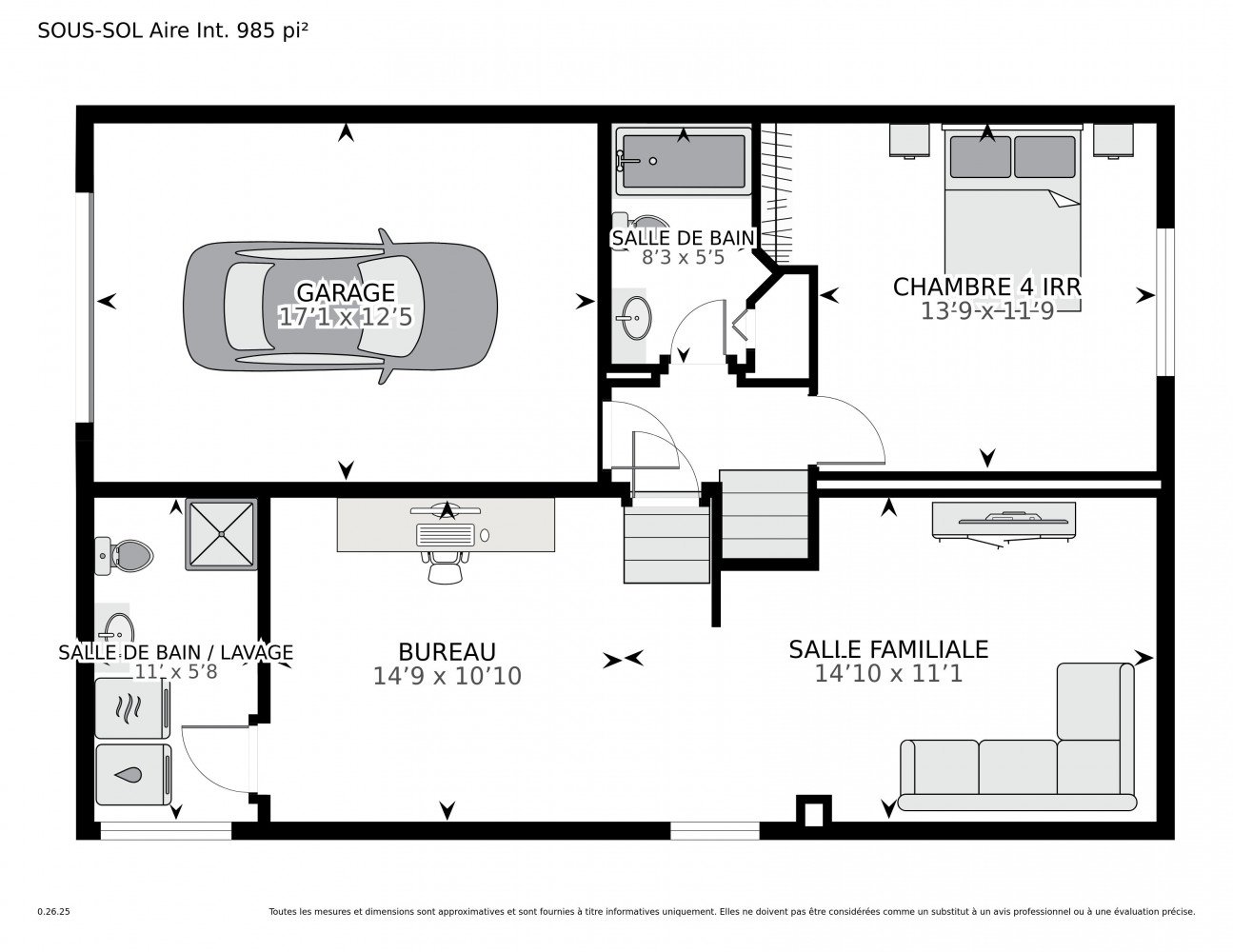
Salle familiale
Sous-sol
14.10 x 11.1 pi.
Revêtement : Céramique

plancher chauffant
Chambre à coucher
Sous-sol
13.9 x 11.9 pi. - irrégulier
Revêtement : Plancher flottant
Bureau à domicile
Sous-sol
14.9 x 10.10 pi.
Revêtement : Céramique

plancher chauffant
Salle de bains
Sous-sol
8.3 x 5.5 pi.
Revêtement : Céramique

plancher chauffant
Salle de bains
Sous-sol
11 x 5.8 pi.
Revêtement : Plancher flottant

avec salle de lavage

Inclusions

Lave-vaisselle, rideaux, luminaires, thermopompe mural.

Exclusions

chauffe-eau loué

Addenda

Découvrez cette jolie maison familiale située au 12035 Place Cléophas-Soucy, au coeur du secteur recherché de Bordeaux dans Ahuntsic. Nichée sur une rue paisible et peu passante, à quelques pas seulement des berges de la rivière des Prairies, elle offre un cadre de vie chaleureux et convivial, idéal pour une famille souhaitant s'établir dans un environnement verdoyant et sécuritaire.

Dès l'entrée, vous serez accueilli par des espaces lumineux et bien agencés. Le rez-de-chaussée propose une aire de vie agréable où chaque pièce trouve naturellement sa place. La cuisine fonctionnelle, la salle à manger conviviale et le salon chaleureux créent un espace parfait pour les moments en famille et les soirées entre amis.

La maison compte quatre chambres à coucher. Avec trois salles de bain complètes, chacun y trouve son confort au quotidien, un atout majeur pour une famille.

Le sous-sol offre un espace supplémentaire très apprécié : salle familiale, espace de jeux, bureau, rangement, les possibilités sont nombreuses selon votre style de vie.

À l'extérieur, la belle cour arrière intime deviendra votre havre de paix. Que ce soit pour relaxer sur la terrasse, ou profiter des belles journées d'été, cet espace privé est un véritable atout.

Un garage ainsi qu'une allée de stationnement complètent la propriété, offrant une grande commodité dans ce secteur prisé.

Le quartier d'Ahuntsic est reconnu pour son ambiance familiale, ses rues tranquilles bordées d'arbres et sa proximité remarquable avec les services : écoles, parcs, garderies, commerces de quartier, et un accès rapide aux grands axes routiers. À quelques pas du bord de l'eau, c'est un secteur parfait pour les amoureux de plein air et les familles actives.

À propos de cette propriété

Découvrez cette charmante maison familiale située au 12035 Place Cléophas-Soucy, dans le secteur recherché de Bordeaux à Ahuntsic. Nichée sur une rue tranquille, elle offre quatre chambres, trois salles de bain, un sous-sol polyvalent et une belle cour arrière intime. Garage et allée de stationnement. À proximité des écoles, parcs, services et grands axes routiers. Un cadre de vie idéal pour une famille.

Demande d'information

Détails financiers

Annuel
Mensuel
Évaluation municipale (2025)
Bâtiment
262 900 $
Terrain
358 700 $
Taxes
Taxes scolaires (2025)
493 $ 41 $
Taxes municipales (2025)
4 038 $ 337 $

Calculateurs

  • Paiement mensuel
  • Taxe de mutation
  • Pouvoir d'achat

Montant des versements mensuels

 

**Le prix affiché n’inclut pas la prime d’assurance SCHL.

Taxe de mutation

 

** Uniquement à titre de référence, pour le montant exact, s'il vous plaît confirmer auprès de la ville ou la municipalité.

Pouvoir d'achat

 

**Le prix affiché n’inclut pas la prime d’assurance SCHL.

Vous aimez cette propriété?Partagez-la!

Nouvelles propriétés sur le marché qui pourraient vous intéresser

Vous cherchez la propriété de vos rêves? C’est par ici, et appelez-moi pour en savoir davantage ou planifier une visite !

+

Vos préférences en matière de cookies

Nous utilisons des cookies pour optimiser notre site web et collecter des statistiques d'utilisation.

Politique en matière de cookies