Maison de plain-pied à vendre, Montréal (Montréal-Nord)

629 000 $

10865, Av. Wilfrid-St-Louis

Montréal (Montréal-Nord)

chambre(s) 5 salle(s) de bain 2 salle(s) de bain 11
Photo Isabelle Naud

Isabelle Naud

Courtier immobilier résidentiel et commercial

514 576-1766

Photo Mireille Léonard

Mireille Léonard

Courtier immobilier résidentiel et commercial

514 244-8466

No Centris
#17902997
Type de propriété
Maison de plain-pied
Style de bâtiment
Détaché (Isolé)
Année de construction
1970
Superficie du terrain
353.00 m²

Caractéristiques

Zonage
Résidentiel
Toiture
Bardeaux d'asphalte
Type de fenêtre
Manivelle
Aménagement du terrain
Clôturé
Système d'égouts
Municipal
Stationnement
Au garage (1) , Extérieur (1)
Sous-sol
Totalement aménagé , 6 pieds et plus
Revêtements
Pierre , Brique, Bois
Proximité
Transport en commun , École secondaire, École primaire, Piste cyclable, Parc-espace vert, Hôpital, Garderie/CPE, Cegep, Autoroute/Voie rapide
Garage
Simple largeur , Intégré
Fondation
Béton coulé
Fenêtres
Aluminium
Énergie pour le chauffage
Électricité
Approvisionnement en eau
Municipalité
Armoires
Bois

Dimensions

Façade du terrain
13.11 m
Profondeur du terrain
30.48 m
Superficie du terrain
353.00 m²

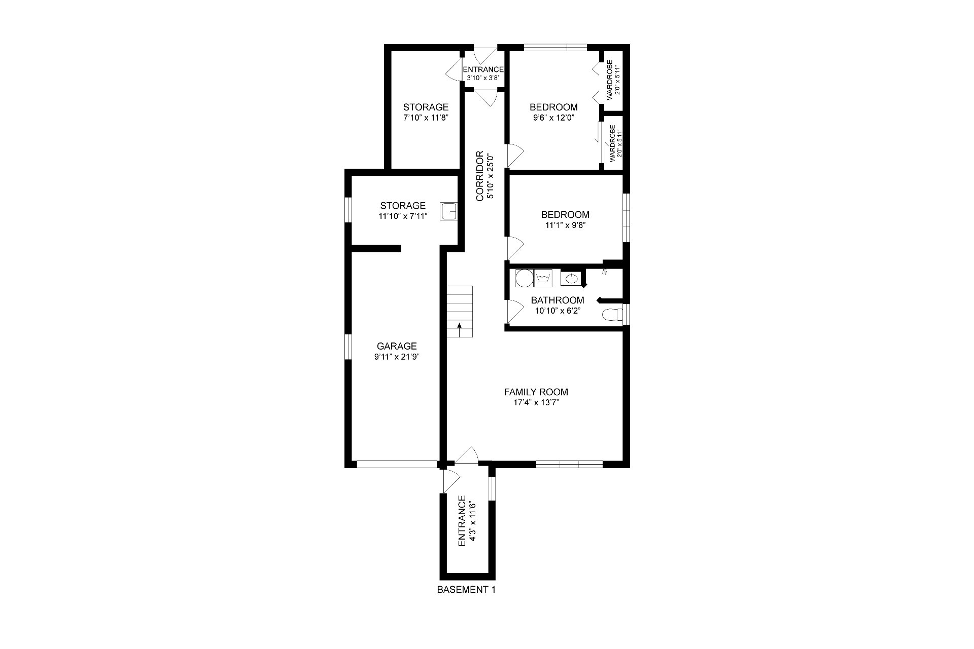
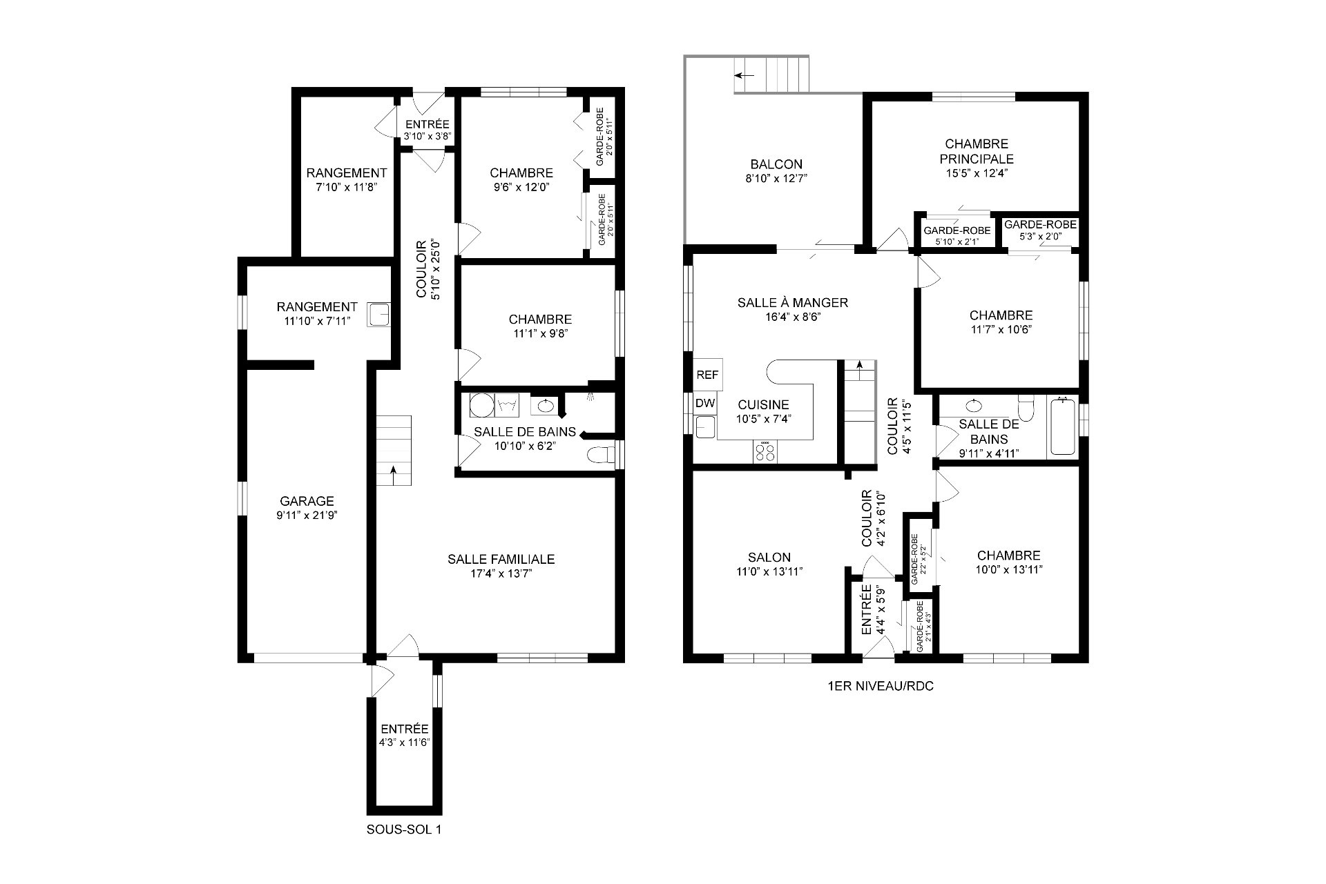
Particularités des pièces

Pièces
11 pièces    |    5 chambre(s)    |    2 salle(s) de bain    |    0 salle(s) d'eau
Hall d'entrée
Rez-de-chaussée
4.4 x 5.9 pi.
Revêtement : Céramique
Salon
Rez-de-chaussée
11 x 13.11 pi.
Revêtement : Bois
Cuisine
Rez-de-chaussée
10.5 x 7.4 pi. - irrégulier
Revêtement : Céramique
Salle à manger
Rez-de-chaussée
16.4 x 8.6 pi. - irrégulier
Revêtement : Céramique
Chambre à coucher principale
Rez-de-chaussée
15.5 x 12.4 pi. - irrégulier
Revêtement : Bois
Chambre à coucher
Rez-de-chaussée
11.7 x 10.6 pi.
Revêtement : Bois
Chambre à coucher
Rez-de-chaussée
10 x 13.11 pi.
Revêtement : Bois
Salle de bains
Rez-de-chaussée
9.11 x 4.11 pi.
Revêtement : Céramique
Hall d'entrée
Sous-sol
4.3 x 11.6 pi. - irrégulier
Revêtement : Linoléum
Salle familiale
Sous-sol
17.4 x 13.7 pi.
Revêtement : Tapis
Chambre à coucher
Sous-sol
11.1 x 9.8 pi. - irrégulier
Revêtement : Plancher flottant
Chambre à coucher
Sous-sol
9.6 x 12 pi.
Revêtement : Bois
Salle de bains
Sous-sol
10.10 x 6.2 pi. - irrégulier
Revêtement : Céramique
Rangement
Sous-sol
11.10 x 7.11 pi.
Revêtement : Béton
Cave/ chambre froide
Sous-sol
7.10 x 11.8 pi.
Revêtement : Béton
Hall d'entrée
Sous-sol
3.10 x 3.8 pi. - irrégulier
Revêtement : Céramique

Inclusions

Lave-vaisselle, abri-tempo, établi et étagères du garage, luminaires et ventilateurs, stores, rideaux et tringles.

Addenda

Propriété spacieuse et bien entretenue, située dans un secteur résidentiel paisible de Montréal, idéale pour une famille à la recherche d'espace et de confort.

La maison offre 5 chambres à coucher, permettant une grande flexibilité d'aménagement, que ce soit pour une famille nombreuse, un bureau à domicile ou une salle polyvalente. Les 2 salles de bain assurent un quotidien pratique et fonctionnel.

Les espaces de vie sont lumineux et bien disposés, offrant une atmosphère chaleureuse et conviviale. Le garage constitue un avantage important, tant pour le stationnement que pour le rangement additionnel.

Le sous-sol possède deux entrées et pourrait être converti en logement (intergénérationnel, bureau ou autre), sous réserve que l'acheteur fasse ses vérifications préalables auprès des autorités compétentes.

À l'extérieur, la cour permet de profiter pleinement des beaux jours et comprend un cabanon, idéal pour l'entreposage des équipements saisonniers.

Située à proximité des écoles, parcs, commerces, transports en commun, à 3 minutes à pieds du parc de l'Ile-de-la-Visitation et des principaux axes routiers, cette propriété représente une belle opportunité pour ceux qui souhaitent s'établir dans un quartier accessible et familial de Montréal.

À propos de cette propriété

Propriété offrant de beaux volumes et une configuration fonctionnelle. Elle comprend 5 chambres à coucher et 2 salles de bain, idéale pour une famille à la recherche d'espace. La propriété dispose d'un garage ainsi que d'un cabanon, offrant des solutions de rangement pratiques. Située dans un secteur résidentiel, à proximité des écoles, parcs, commerces, transports en commun et des principaux axes routiers. À 3 minutes à pieds du parc de l'Ile-de-la-Visitation. Belle opportunité dans un quartier familial de Montréal.

Vente avec exclusion(s) de garantie légale - Voir courtier(s) inscripteur(s).
Demande d'information

Détails financiers

Annuel
Mensuel
Évaluation municipale (2026)
Bâtiment
334 000 $
Terrain
264 800 $
Taxes
Taxes scolaires (2026)
414 $ 35 $
Taxes municipales (2026)
3 849 $ 321 $

Calculateurs

  • Paiement mensuel
  • Taxe de mutation
  • Pouvoir d'achat

Montant des versements mensuels

 

**Le prix affiché n’inclut pas la prime d’assurance SCHL.

Taxe de mutation

 

** Uniquement à titre de référence, pour le montant exact, s'il vous plaît confirmer auprès de la ville ou la municipalité.

Pouvoir d'achat

 

**Le prix affiché n’inclut pas la prime d’assurance SCHL.

Vous aimez cette propriété?Partagez-la!

Nouvelles propriétés sur le marché qui pourraient vous intéresser

Vous cherchez la propriété de vos rêves? C’est par ici, et appelez-moi pour en savoir davantage ou planifier une visite !

+

Vos préférences en matière de cookies

Nous utilisons des cookies pour optimiser notre site web et collecter des statistiques d'utilisation.

Politique en matière de cookies