Maison de plain-pied à vendre, Montréal (Ahuntsic-Cartierville)

1 350 000 $

10425, Av. Papineau

Montréal (Ahuntsic-Cartierville)

chambre(s) 6 salle(s) de bain 3 salle(s) de bain 10
Photo Isabelle Naud

Isabelle Naud

Courtier immobilier résidentiel et commercial

514 576-1766

Photo Justin Rizkalla

Justin Rizkalla

Courtier immobilier résidentiel

514 795-3272

No Centris
#11734436
Type de propriété
Maison de plain-pied
Style de bâtiment
Détaché (Isolé)
Année de construction
2015
Superficie du terrain
494.70 m²
Date d’emménagement
60 jours

Caractéristiques

Zonage
Résidentiel
Toiture
Bardeaux d'asphalte
Système d'égouts
Municipal
Stationnement
Au garage (2) , Extérieur (4)
Sous-sol
Totalement aménagé , 6 pieds et plus
Salle de bains/salle d'eau
Attenante à la chambre principale
Revêtements
Brique
Proximité
Transport en commun , École secondaire, École primaire, Piste cyclable, Parc-espace vert, Hôpital, Garderie/CPE
Garage
Intégré
Proximité
Autoroute/Voie rapide
Garage
Double largeur ou plus , Chauffé
Fondation
Béton coulé
Équipement disponible
Thermopompe centrale , Échangeur d'air
Énergie pour le chauffage
Électricité
Approvisionnement en eau
Municipalité
Mode de chauffage
Plinthes électriques , Air soufflé
Allée
Double largeur ou plus , Asphalte

Dimensions

Façade du terrain
15.24 m
Profondeur du terrain
32.46 m
Superficie du terrain
494.70 m²

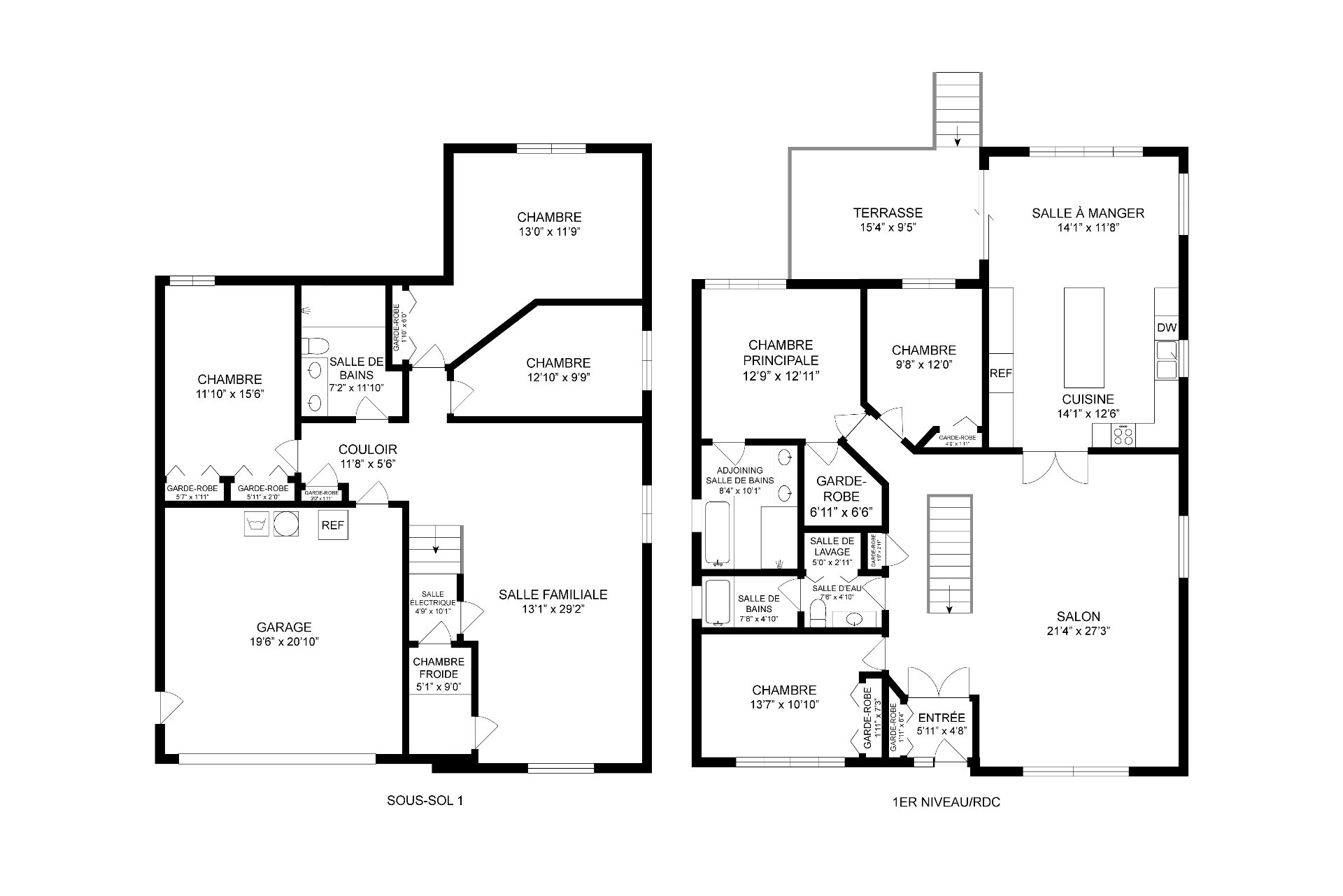
Particularités des pièces

Pièces
10 pièces    |    6 chambre(s)    |    3 salle(s) de bain    |    1 salle(s) d'eau
Hall d'entrée
Rez-de-chaussée
5.11 x 4.8 pi.
Revêtement : Céramique
Salon
Rez-de-chaussée
21.4 x 27.3 pi. - irrégulier
Revêtement : Bois
Cuisine
Rez-de-chaussée
14.1 x 12.6 pi.
Revêtement : Céramique
Salle à manger
Rez-de-chaussée
14.1 x 11.8 pi.
Revêtement : Céramique
Chambre à coucher principale
Rez-de-chaussée
12.9 x 12.11 pi.
Revêtement : Bois
Penderie (Walk-in)
Rez-de-chaussée
6.11 x 6.6 pi. - irrégulier
Revêtement : Bois
Chambre à coucher
Rez-de-chaussée
13.7 x 10.10 pi.
Revêtement : Bois
Chambre à coucher
Rez-de-chaussée
9.8 x 12 pi. - irrégulier
Revêtement : Bois
Salle de bains
Rez-de-chaussée
7.8 x 4.10 pi.
Revêtement : Céramique
Salle de bains
Rez-de-chaussée
8.4 x 10.1 pi.
Revêtement : Céramique

attenante
Salle d'eau
Rez-de-chaussée
7.6 x 4.10 pi.
Revêtement : Céramique
Salle de lavage
Rez-de-chaussée
5 x 2.11 pi.
Revêtement : Céramique
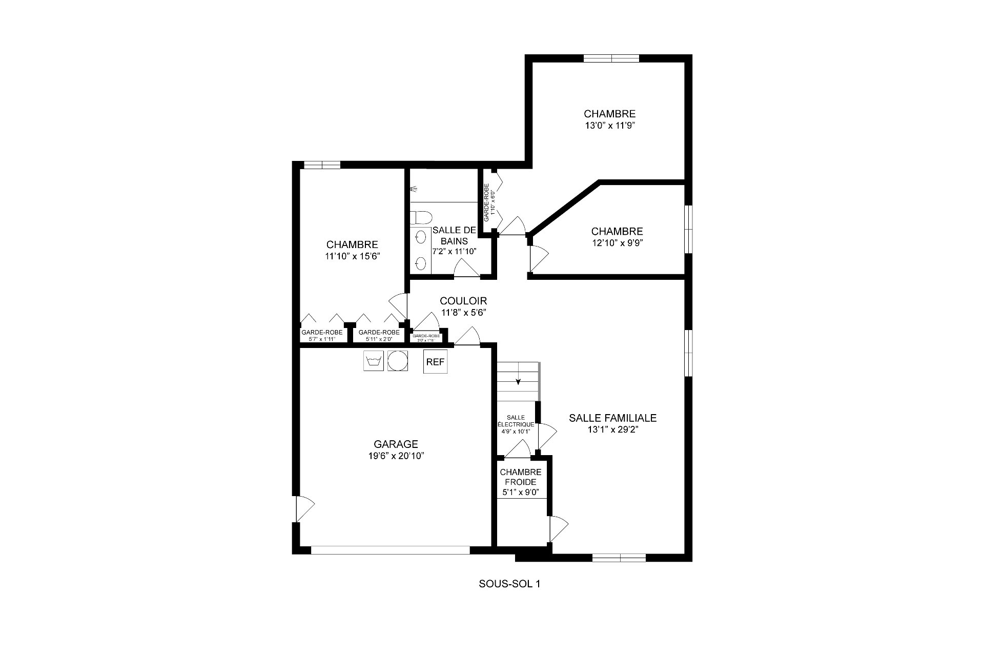
Salle familiale
Sous-sol
13.1 x 29.2 pi.
Revêtement : Plancher flottant
Chambre à coucher
Sous-sol
12.10 x 9.9 pi.
Revêtement : Plancher flottant
Chambre à coucher
Sous-sol
13 x 11.9 pi.
Revêtement : Plancher flottant
Chambre à coucher
Sous-sol
11.10 x 15.6 pi.
Revêtement : Plancher flottant
Salle de bains
Sous-sol
7.2 x 11.10 pi. - irrégulier
Revêtement : Céramique
Cave/ chambre froide
Sous-sol
5.1 x 9 pi.
Revêtement : Béton
salle électrique
Sous-sol
4.9 x 10.1 pi.
Revêtement : Béton

Inclusions

Tous les stores, le lave-vaisselle, le réfrigérateur, la cuisinière, les rideaux, les tringles à rideaux, tous les luminaires, aspirateur central et ses accessoires.

Exclusions

Laveuse, sècheuse.

Addenda

Construite en 2015, découvrez cette magnifique propriété idéalement située au coeur d'Ahuntsic, à seulement quelques pas de la très recherchée Promenade Fleury, véritable artère de vie du quartier reconnue pour ses cafés, restaurants, terrasses et commerces de proximité.

Cette spacieuse demeure saura vous charmer par ses grands espaces et sa luminosité. Elle offre six chambres à coucher, parfaites pour une grande famille ou pour aménager des espaces de travail à domicile, ainsi que trois salles de bain complètes et une salle d'eau, assurant confort et fonctionnalité au quotidien.

Les aires de vie principales se distinguent par leurs espaces invitants, baignés de lumière naturelle. La cuisine, au coeur de la maison, est à la fois élégante et pratique, avec son grand îlot central idéal pour recevoir, cuisiner et partager des moments en famille ou entre amis.

À l'extérieur, vous profiterez d'une cour arrière, parfaite pour les belles saisons, ainsi que d'un grand garage offrant un espace de rangement appréciable et un stationnement pratique.

L'emplacement est tout simplement exceptionnel. À distance de marche, vous trouverez des écoles, garderies et collèges de renom, de magnifiques parcs, des pistes cyclables, ainsi que tous les services essentiels tels que épiceries, pharmacies et commerces variés. Le secteur est également très bien desservi par le transport en commun, facilitant vos déplacements au quotidien.

Une propriété rare sur le marché, alliant espace, confort et qualité de vie dans l'un des quartiers les plus prisés de Montréal.

À propos de cette propriété

Construite en 2015, découvrez cette magnifique propriété au coeur d'Ahuntsic, à quelques pas de la Promenade Fleury. Offrant 6 chambres, 3 salles de bain complètes et une salle d'eau, elle séduit par ses grands espaces lumineux et sa fonctionnalité. La cuisine avec îlot central s'ouvre sur des aires de vie conviviales, parfaites pour recevoir. Profitez d'une cour arrière et d'un grand garage. Emplacement de choix à distance de marche des écoles, parcs, pistes cyclables, commerces et transports en commun. Une propriété rare alliant espace et qualité de vie.

Demande d'information

Détails financiers

Annuel
Mensuel
Évaluation municipale (2026)
Bâtiment
659 900 $
Terrain
371 000 $
Taxes
Taxes scolaires (2026)
769 $ 64 $
Taxes municipales (2026)
6 298 $ 525 $

Calculateurs

  • Paiement mensuel
  • Taxe de mutation
  • Pouvoir d'achat

Montant des versements mensuels

 

**Le prix affiché n’inclut pas la prime d’assurance SCHL.

Taxe de mutation

 

** Uniquement à titre de référence, pour le montant exact, s'il vous plaît confirmer auprès de la ville ou la municipalité.

Pouvoir d'achat

 

**Le prix affiché n’inclut pas la prime d’assurance SCHL.

Vous aimez cette propriété?Partagez-la!

Nouvelles propriétés sur le marché qui pourraient vous intéresser

Vous cherchez la propriété de vos rêves? C’est par ici, et appelez-moi pour en savoir davantage ou planifier une visite !

+

Vos préférences en matière de cookies

Nous utilisons des cookies pour optimiser notre site web et collecter des statistiques d'utilisation.

Politique en matière de cookies