Duplex à vendre, Montréal (Ahuntsic-Cartierville)

Vendu

1410-1412, Rue de Louvain E.

Montréal (Ahuntsic-Cartierville)

chambre(s) 3 salle(s) de bain 1 salle(s) de bain 8
Photo Isabelle Naud

Isabelle Naud

Courtier immobilier résidentiel et commercial

514 576-1766

No Centris
#23286293
Type de propriété
Duplex
Style de bâtiment
Jumelé
Année de construction
1962
Superficie du terrain
372.90 m²

Caractéristiques

Zonage
Résidentiel
Toiture
Membrane élastomère
Système d'égouts
Municipal
Sous-sol
6 pieds et plus
Stationnement
Extérieur (2)
Proximité
Transport en commun , École secondaire, École primaire, Piste cyclable, Parc-espace vert, Hôpital, Garderie/CPE, Cegep, Autoroute/Voie rapide, Autre
Fondation
Béton coulé
Énergie pour le chauffage
Électricité
Approvisionnement en eau
Municipalité

Dimensions

Façade du terrain
13.59 m
Profondeur du terrain
27.43 m
Superficie du terrain
372.90 m²

Particularités des pièces

Pièces
8 pièces    |    3 chambre(s)    |    1 salle(s) de bain    |    0 salle(s) d'eau
Unité 1 - Logement
Salon
Rez-de-chaussée
14.4 x 11.1 pi.
Revêtement : Bois
Cuisine
Rez-de-chaussée
9.10 x 9.3 pi.
Revêtement : Céramique
Salle à manger
Rez-de-chaussée
11.1 x 7.6 pi.
Revêtement : Céramique
Chambre à coucher
Rez-de-chaussée
18.6 x 11 pi.
Revêtement : Bois
Chambre à coucher
Rez-de-chaussée
13.6 x 10.11 pi.
Revêtement : Bois
Salle de bains
Rez-de-chaussée
9.7 x 5.3 pi.
Revêtement : Céramique
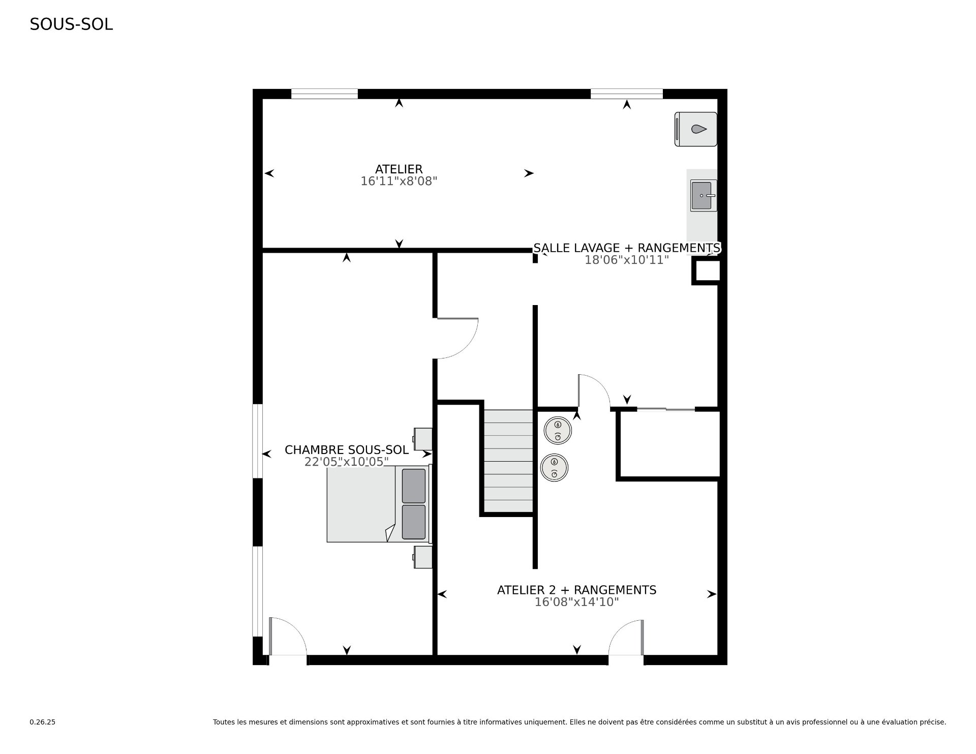
Atelier
Sous-sol
16.11 x 8.8 pi.
Revêtement : Bois
Chambre à coucher
Sous-sol
22.5 x 10.5 pi.
Revêtement : Plancher flottant
Salle de lavage
Sous-sol
18.6 x 10.11 pi.
Revêtement : Bois
Rangement
Sous-sol
16.8 x 14.10 pi.
Revêtement : Béton
Unité 2 - Logement
Pièces non détaillées

Inclusions

Piano, stores, rideaux, lave-vaisselle, frigo, cuisinière, laveuse-sécheuse.

Addenda

Bienvenue au 1410-1412 rue de Louvain Est, un charmant duplex offrant un excellent potentiel, idéalement situé au coeur du quartier prisé d'Ahuntsic.

Le logement principal, occupant le rez-de-chaussée et le sous-sol, propose un vaste espace de vie lumineux comprenant deux chambres, avec la possibilité d'en aménager une troisième selon vos besoins. Le sous-sol, spacieux et fonctionnel, comprend un atelier et une grande zone de rangement. À l'extérieur, vous profiterez d'une belle cour arrière verdoyante et d'une allée de stationnement pratique.

À l'étage, le logement du deuxième niveau est un grand 6 ½ offrant des pièces bien divisées, parfait pour générer un revenu locatif intéressant.

Le quartier est tout simplement exceptionnel. Vous profiterez d'un emplacement stratégique à distance de marche de tous les services essentiels : épiceries, pharmacies, cafés, restaurants, écoles et plus encore. Le métro et les principales artères sont facilement accessibles, simplifiant vos déplacements quotidiens.

À proximité, la célèbre Promenade Fleury vous invite à découvrir ses terrasses animées, ses commerces locaux et son ambiance conviviale. Les amateurs de nature et de plein air seront comblés par le Parc Frédéric-Back, véritable oasis urbaine offrant de vastes espaces verts, des sentiers pédestres et des pistes cyclables.

Ce duplex combine harmonieusement confort, potentiel et qualité de vie, dans un secteur où il fait bon vivre.

À propos de cette propriété

Bienvenue au 1410-1412 rue de Louvain Est, un charmant duplex offrant espace, confort et potentiel, au coeur du quartier prisé d'Ahuntsic. Le logement principal propose deux chambres (avec possibilité d'une troisième), un sous-sol spacieux avec atelier et rangement, ainsi qu'une belle cour arrière et une allée de stationnement. À l'étage, un grand 6½ bien divisé offre un revenu locatif intéressant. Emplacement idéal, à proximité du métro, des commerces, écoles et du parc Frédéric-Back. Un parfait équilibre entre qualité de vie et rentabilité.

Vente avec exclusion(s) de garantie légale - Voir courtier(s) inscripteur(s).
Demande d'information

Détails financiers

Annuel
Mensuel
Évaluation municipale (2025)
Bâtiment
351 400 $
Terrain
410 200 $
Taxes
Taxes scolaires (2025)
573 $ 48 $
Taxes municipales (2025)
4 581 $ 382 $
Revenus potentiels bruts
Résidentiels
34 800 $ 2 900 $

Calculateurs

  • Paiement mensuel
  • Taxe de mutation
  • Pouvoir d'achat

Montant des versements mensuels

 

**Le prix affiché n’inclut pas la prime d’assurance SCHL.

Taxe de mutation

 

** Uniquement à titre de référence, pour le montant exact, s'il vous plaît confirmer auprès de la ville ou la municipalité.

Pouvoir d'achat

 

**Le prix affiché n’inclut pas la prime d’assurance SCHL.

Vous aimez cette propriété?Partagez-la!

Nouvelles propriétés sur le marché qui pourraient vous intéresser

Vous cherchez la propriété de vos rêves? C’est par ici, et appelez-moi pour en savoir davantage ou planifier une visite !

+

Vos préférences en matière de cookies

Nous utilisons des cookies pour optimiser notre site web et collecter des statistiques d'utilisation.

Politique en matière de cookies