Duplex à vendre, Mont-Royal

1 349 000 $

1856-1858, Ch. Norway

Mont-Royal

chambre(s) 2 salle(s) de bain 2 salle(s) de bain 6
Photo Isabelle Naud

Isabelle Naud

Courtier immobilier résidentiel et commercial

514 576-1766

Photo Justin Rizkalla

Justin Rizkalla

Courtier immobilier résidentiel

514 795-3272

No Centris
#22222350
Type de propriété
Duplex
Style de bâtiment
Jumelé
Année de construction
1957
Superficie du terrain
334.50 m²

Caractéristiques

Zonage
Résidentiel
Toiture
Autre
Aménagement du terrain
Clôturé
Système d'égouts
Municipal
Stationnement
Au garage (2) , Extérieur (3)
Sous-sol
Totalement aménagé , 6 pieds et plus
Proximité
Transport en commun , École secondaire, École primaire, Piste cyclable, Parc-espace vert, Hôpital, Garderie/CPE, Cegep, Autoroute/Voie rapide
Garage
Tandem
Fondation
Béton coulé
Équipement disponible
Thermopompe murale , Climatiseur central
Énergie pour le chauffage
Électricité
Approvisionnement en eau
Municipalité
Aménagement du terrain
Patio
Appareils en location
Chauffe-eau (2)
Allée
Asphalte

Dimensions

Façade du bâtiment
10.07 m
Profondeur du bâtiment
12.82 m
Façade du terrain
12.19 m
Profondeur du terrain
27.43 m
Superficie du terrain
334.50 m²

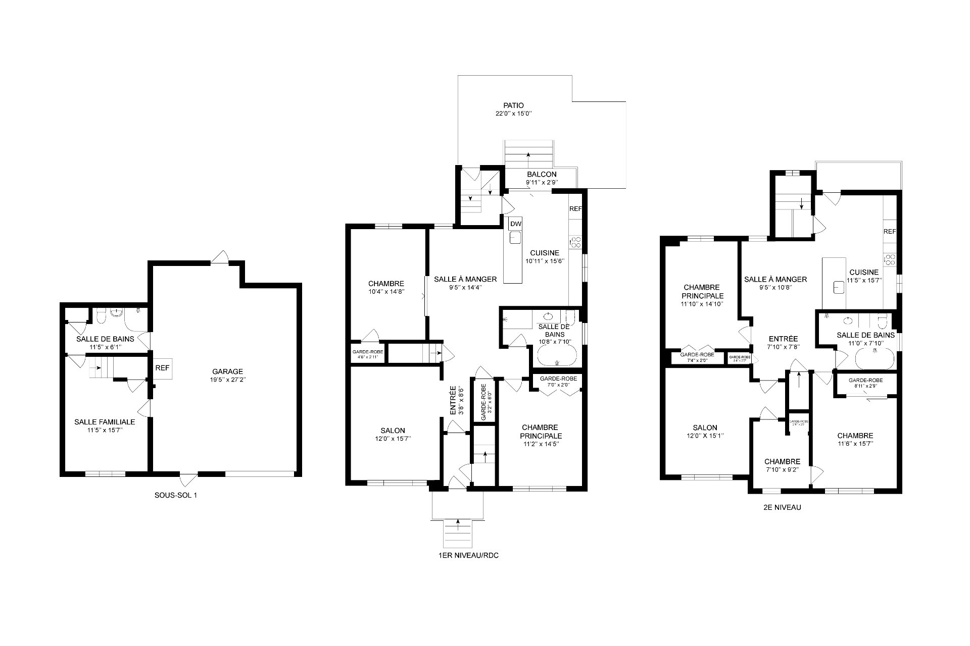
Particularités des pièces

Pièces
6 pièces    |    2 chambre(s)    |    2 salle(s) de bain    |    0 salle(s) d'eau
Unité 1 - Logement
Hall d'entrée
Rez-de-chaussée
3.8 x 8.6 pi.
Revêtement : Bois
Salon
Rez-de-chaussée
12 x 15.7 pi.
Revêtement : Bois
Cuisine
Rez-de-chaussée
10.11 x 15.6 pi.
Revêtement : Céramique
Salle à manger
Rez-de-chaussée
9.5 x 14.4 pi.
Revêtement : Bois
Chambre à coucher principale
Rez-de-chaussée
11.2 x 14.5 pi. - irrégulier
Revêtement : Bois
Chambre à coucher
Rez-de-chaussée
10.4 x 14.8 pi.
Revêtement : Bois
Salle de bains
Rez-de-chaussée
10.8 x 7.10 pi. - irrégulier
Revêtement : Céramique
Salle familiale
Sous-sol
11.5 x 15.7 pi.
Revêtement : Plancher flottant
Salle de bains
Sous-sol
11.5 x 6.1 pi. - irrégulier
Unité 2 - Logement
Hall d'entrée
2ième étage
7.10 x 7.8 pi.
Revêtement : Bois
Salon
2ième étage
12 x 15.1 pi.
Revêtement : Bois
Cuisine
2ième étage
11.5 x 15.7 pi. - irrégulier
Revêtement : Céramique
Salle à manger
2ième étage
9.5 x 10.8 pi.
Revêtement : Bois
Chambre à coucher principale
2ième étage
11.10 x 14.10 pi. - irrégulier
Revêtement : Bois
Chambre à coucher
2ième étage
11.6 x 15.7 pi. - irrégulier
Revêtement : Bois
Chambre à coucher
2ième étage
7.10 x 9.2 pi. - irrégulier
Revêtement : Bois
Salle de bains
2ième étage
11 x 7.10 pi. - irrégulier
Revêtement : Céramique

Inclusions

Cuisinière, lave-vaisselle, réfrigérateur, laveuse et sécheuse pour les deux logements.

Exclusions

Tous les effets personnels des locataires.

Addenda

Découvrez ce magnifique duplex situé au coeur de Ville Mont-Royal. Cette propriété soigneusement entretenue se distingue par ses deux unités spacieuses, lumineuses et au goût du jour. Chacune offre trois chambres à coucher, de superbes aires de vie baignées de lumière naturelle ainsi que de belles cuisines modernes, à la fois élégantes et fonctionnelles.

Le logement principal comprend un sous-sol aménagé, offrant un espace supplémentaire polyvalent, idéal pour une salle familiale, un bureau ou une aire de jeux. Les deux salles de lavage sont situées au sous-sol, chacune étant entièrement indépendante, même pour le logement à l'étage, assurant confort et intimité à tous les occupants.

Ses systèmes sont complètement séparés pour chaque unité (électricité, chauffage, climatisation), offrant une gestion simple et une autonomie totale. À l'extérieur, vous profiterez d'une belle cour arrière privée, accessible exclusivement au logement du rez-de-chaussée, parfaite pour les beaux jours. Un garage double vient compléter l'ensemble, offrant un espace de stationnement et de rangement très apprécié.

L'emplacement est tout simplement exceptionnel. À proximité du métro et du REM, vous bénéficiez d'un accès rapide au centre-ville et aux principaux axes. Le secteur est reconnu pour ses écoles de grande qualité, dont l'École primaire Saint-Clément-Ouest, ainsi que pour son accès au centre sportif de Ville Mont-Royal. À seulement quelques minutes du Royalmount, vous profiterez également d'une offre incomparable de commerces, restaurants et divertissements.

Une propriété clé en main alliant emplacement de choix, confort et qualité de vie exceptionnelle.

À propos de cette propriété

Découvrez ce magnifique duplex situé au coeur de Ville Mont-Royal. Offrant deux unités lumineuses, spacieuses et au goût du jour, chacune propose trois chambres, de belles aires de vie baignées de lumière et des cuisines modernes. Le logement principal comprend un sous-sol aménagé. Les systèmes sont entièrement séparés (électricité, chauffage, climatisation) et chaque unité dispose de sa salle de lavage. Profitez d'une cour arrière privée pour le rez-de-chaussée et d'un garage double. Emplacement de choix près du métro, du REM et du Royalmount.

Demande d'information

Détails financiers

Annuel
Mensuel
Évaluation municipale (2026)
Bâtiment
760 900 $
Terrain
560 300 $
Taxes
Taxes scolaires (2026)
1 049 $ 87 $
Taxes municipales (2026)
6 920 $ 577 $
Revenus potentiels bruts
Résidentiels
64 800 $ 5 400 $

Calculateurs

  • Paiement mensuel
  • Taxe de mutation
  • Pouvoir d'achat

Montant des versements mensuels

 

**Le prix affiché n’inclut pas la prime d’assurance SCHL.

Taxe de mutation

 

** Uniquement à titre de référence, pour le montant exact, s'il vous plaît confirmer auprès de la ville ou la municipalité.

Pouvoir d'achat

 

**Le prix affiché n’inclut pas la prime d’assurance SCHL.

Vous aimez cette propriété?Partagez-la!

Nouvelles propriétés sur le marché qui pourraient vous intéresser

Vous cherchez la propriété de vos rêves? C’est par ici, et appelez-moi pour en savoir davantage ou planifier une visite !

+

Vos préférences en matière de cookies

Nous utilisons des cookies pour optimiser notre site web et collecter des statistiques d'utilisation.

Politique en matière de cookies