Condo à vendre, Montréal (Villeray/Saint-Michel/Parc-Extension)

1 750 000 $

75, Rue De Castelnau O., app. 618

Montréal (Villeray/Saint-Michel/Parc-Extension)

chambre(s) 3 salle(s) de bain 2 salle(s) de bain 7
Photo Isabelle Naud

Isabelle Naud

Courtier immobilier résidentiel et commercial

514 576-1766

No Centris
#10255033
Type de propriété
Condo
Style de bâtiment
Détaché (Isolé)
Année de construction
2020
Date d’emménagement
60 jours

Caractéristiques

Zonage
Résidentiel
Toiture
Membrane élastomère
Système d'égouts
Municipal
Stationnement
Au garage (1)
Proximité
Transport en commun , École secondaire, École primaire, Piste cyclable, Parc-espace vert, Hôpital, Garderie/CPE, Cegep, Autoroute/Voie rapide, Autre
Garage
Simple largeur , Intégré
Foyers-poêles
Foyer au gaz
Équipement disponible
Thermopompe centrale , Échangeur d'air, Autre
Énergie pour le chauffage
Électricité
Approvisionnement en eau
Municipalité
Services disponibles
Salle d'exercice
Facilité d'accès
Ascenseur

Dimensions

Superficie habitable
155.70 m²

Particularités des pièces

Pièces
7 pièces    |    3 chambre(s)    |    2 salle(s) de bain    |    1 salle(s) d'eau
Hall d'entrée
Autre
14.7 x 6.7 pi. - irrégulier
Revêtement : Bois
Chambre à coucher
Autre
17.6 x 9.6 pi.
Revêtement : Bois
Chambre à coucher
Autre
9.7 x 9.3 pi.
Revêtement : Bois
Penderie (Walk-in)
Autre
7.11 x 4.5 pi.
Revêtement : Bois
Salle de bains
Autre
8.3 x 6.3 pi.
Revêtement : Céramique
Salon
Autre
14.5 x 14.1 pi.
Revêtement : Bois
Salon
Autre
20.1 x 13.11 pi.
Revêtement : Bois
Cuisine
Autre
17.6 x 6.3 pi.
Revêtement : Bois
Salle à manger
Autre
18.3 x 10.7 pi.
Revêtement : Bois
Chambre à coucher
Autre
16 x 13.1 pi. - irrégulier
Revêtement : Bois
Salle de bains
Autre
11.3 x 6 pi.
Revêtement : Céramique
Salle d'eau
Autre
6.7 x 3.9 pi.
Revêtement : Bois
Douche
Autre
6.4 x 3.1 pi.

Exclusions

Borne de recharge pour voiture électrique.

Addenda

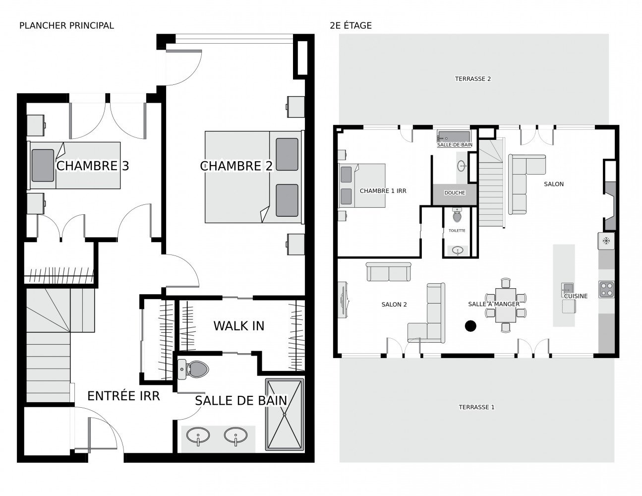
Découvrez un condo d'exception situé au 75 Rue de Castelnau Ouest #618, au coeur du quartier prisé de Villeray, à quelques pas seulement du Parc Jarry, du Stade IGA et du Marché Jean-Talon. Ce superbe condo sur deux étages marie à la perfection design contemporain, confort absolu et luminosité exceptionnelle.

On est séduit par l'élégance et l'ouverture de l'espace. La pièce de vie principale, baignée de lumière naturelle grâce à de grandes fenêtres, offre une atmosphère chaleureuse et conviviale. La cuisine au style moderne, dotée d'un vaste îlot central, se distingue par ses lignes épurées et ses matériaux haut de gamme. Ouverte sur la salle à manger et le salon, elle crée un espace idéal pour recevoir et profiter de moments de qualité en famille ou entre amis.

Le condo compte trois chambres spacieuses, réparties de façon optimale pour assurer intimité et confort. Au premier niveau, la suite principale impressionne par son walk-in et sa salle de bain au design raffiné, tandis qu'une deuxième chambre lumineuse complète l'espace de nuit. Au niveau supérieur, une troisième chambre complète avec salle de bain attenante offre une solution parfaite pour un espace invité, un bureau ou une chambre principale alternative.

Les espaces extérieurs sont tout aussi remarquables : le condo bénéficie de deux grandes terrasses et d'un balcon, permettant de profiter pleinement des beaux jours, que ce soit pour un café matinal, un repas en plein air ou simplement pour admirer les couchers de soleil sur la ville.

L'immeuble, moderne et bien entretenu, offre des commodités recherchées, notamment une salle d'entraînement bien équipée, un ascenseur et un espace de rangement pour vélo. Le condo bénéficie également d'un stationnement intérieur au garage ainsi que de deux espaces de rangement pratiques, offrant confort et fonctionnalité au quotidien.

Son emplacement est tout simplement idéal : à proximité immédiate du métro De Castelnau, du Marché Jean-Talon, des cafés, restaurants et commerces locaux qui font la renommée du quartier. Le Parc Jarry, véritable oasis urbaine, se trouve à deux pas pour vos moments de détente ou activités sportives.

Ce condo est une véritable perle rare, parfaite pour ceux qui recherchent un mode de vie urbain dynamique dans un environnement à la fois élégant, fonctionnel et lumineux.

À propos de cette propriété

Superbe condo moderne sur deux étages situé au coeur de Villeray, à deux pas du parc Jarry et du Marché Jean-Talon. Espaces lumineux à aire ouverte, grande cuisine au design contemporain avec îlot central. Trois chambres spacieuses dont deux avec salle de bain attenante. Deux terrasses, un balcon, salle de gym, stationnement intérieur et deux rangements. Emplacement idéal près du métro De Castelnau et de tous les services.

Demande d'information

Détails financiers

Annuel
Mensuel
Évaluation municipale (2025)
Bâtiment
1 290 000 $
Terrain
265 400 $
Taxes
Taxes scolaires (2025)
1 071 $ 89 $
Taxes municipales (2025)
8 524 $ 710 $
Dépenses et énergie
Frais de copropriété
14 280 $ 1 190 $

Calculateurs

  • Paiement mensuel
  • Taxe de mutation
  • Pouvoir d'achat

Montant des versements mensuels

 

**Le prix affiché n’inclut pas la prime d’assurance SCHL.

Taxe de mutation

 

** Uniquement à titre de référence, pour le montant exact, s'il vous plaît confirmer auprès de la ville ou la municipalité.

Pouvoir d'achat

 

**Le prix affiché n’inclut pas la prime d’assurance SCHL.

Vous aimez cette propriété?Partagez-la!

Nouvelles propriétés sur le marché qui pourraient vous intéresser

Vous cherchez la propriété de vos rêves? C’est par ici, et appelez-moi pour en savoir davantage ou planifier une visite !

+

Vos préférences en matière de cookies

Nous utilisons des cookies pour optimiser notre site web et collecter des statistiques d'utilisation.

Politique en matière de cookies