Condo à vendre, Montréal (Ahuntsic-Cartierville)

549 000 $

8560, Rue Raymond-Pelletier, app. 805

Montréal (Ahuntsic-Cartierville)

chambre(s) 1 salle(s) de bain 1 salle(s) de bain 4
Photo Isabelle Naud

Isabelle Naud

Courtier immobilier résidentiel et commercial

514 576-1766

No Centris
#16104437
Type de propriété
Condo
Style de bâtiment
Détaché (Isolé)
Année de construction
2006
Date d’emménagement
30 jours

Caractéristiques

Zonage
Résidentiel
Système d'égouts
Municipal
Stationnement
Au garage (1)
Proximité
Transport en commun , École secondaire, École primaire, Piste cyclable, Parc-espace vert, Hôpital, Garderie/CPE, Cegep, Autoroute/Voie rapide, Autre
Garage
Simple largeur , Intégré
Équipement disponible
Échangeur d'air , Climatiseur central
Énergie pour le chauffage
Électricité
Approvisionnement en eau
Municipalité

Dimensions

Superficie habitable
93.20 m²

Particularités des pièces

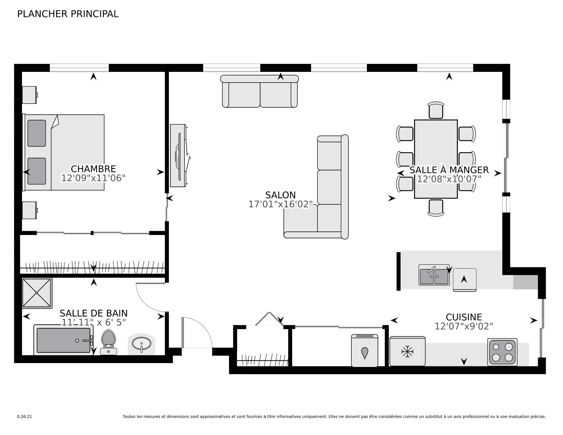
Pièces
4 pièces    |    1 chambre(s)    |    1 salle(s) de bain    |    0 salle(s) d'eau
Salon
Autre
17.1 x 16.2 pi.
Revêtement : Bois
Cuisine
Autre
12.7 x 9.2 pi.
Revêtement : Céramique
Salle à manger
Autre
12.8 x 10.7 pi.
Revêtement : Bois
Chambre à coucher
Autre
12.9 x 11.6 pi.
Revêtement : Bois
Salle de bains
Autre
11.11 x 6.5 pi.
Revêtement : Céramique

Inclusions

Tous les meubles, luminaires et électroménagers

Addenda

Bienvenue dans ce superbe condo offrant un grand espace de vie à aire ouverte, inondé de lumière naturelle. La pièce de séjour se prolonge vers une vaste terrasse privée, idéale pour vos moments de détente, vos repas en plein air ou encore pour recevoir famille et amis. Une place de stationnement au garage complète cet espace de vie pratique et confortable.

En plus de votre unité, l'immeuble met à votre disposition des installations modernes et de qualité. Profitez d'une grande terrasse avec piscine extérieure, parfaite pour vous rafraîchir et socialiser lors des chaudes journées d'été. Restez en forme tout au long de l'année grâce au gym équipé, accessible uniquement aux résidents, vous permettant de vous entraîner sans avoir à sortir de la résidence.

L'emplacement est tout simplement exceptionnel! Niché dans un secteur dynamique et verdoyant, le condo se trouve à quelques pas du Complexe Sportif Claude-Robillard, un lieu incontournable pour les amateurs de sport et d'activités variées. Vous trouverez également à proximité de nombreux parcs, des pistes cyclables sécuritaires et des écoles réputées.

Le quartier regorge de commerces locaux, d'épiceries, de services essentiels et d'espaces verts qui enrichissent la vie de quartier. Grâce aux transports en commun accessibles en quelques minutes, vos déplacements vers le centre-ville ou les quartiers avoisinants se font aisément. De plus, la Promenade Fleury vous attend à quelques pas seulement : une destination prisée offrant restaurants branchés, terrasses conviviales, cafés accueillants et boutiques variées, idéale pour profiter pleinement de la vie urbaine dans une atmosphère chaleureuse.

Une opportunité rare de vivre dans un espace spacieux, lumineux et parfaitement situé, au coeur d'un quartier recherché!

À propos de cette propriété

Bienvenue dans ce superbe condo lumineux offrant un vaste espace de vie à aire ouverte et une grande terrasse privée, idéale pour se détendre ou recevoir. Une place de stationnement au garage complète ce cadre de vie pratique. L'immeuble propose des installations de qualité : piscine extérieure et gym entièrement équipé. Son emplacement est exceptionnel : à deux pas du Complexe Sportif Claude-Robillard, de parcs, écoles réputées et pistes cyclables. Transports en commun et Promenade Fleury à proximité avec ses restaurants, cafés et boutiques animés. Une opportunité rare!

Vente avec exclusion(s) de garantie légale - Voir courtier(s) inscripteur(s).
Demande d'information

Détails financiers

Annuel
Mensuel
Évaluation municipale (2025)
Bâtiment
350 400 $
Terrain
224 200 $
Taxes
Taxes scolaires (2025)
428 $ 36 $
Taxes municipales (2025)
3 456 $ 288 $
Dépenses et énergie
Frais de copropriété
8 448 $ 704 $

Calculateurs

  • Paiement mensuel
  • Taxe de mutation
  • Pouvoir d'achat

Montant des versements mensuels

 

**Le prix affiché n’inclut pas la prime d’assurance SCHL.

Taxe de mutation

 

** Uniquement à titre de référence, pour le montant exact, s'il vous plaît confirmer auprès de la ville ou la municipalité.

Pouvoir d'achat

 

**Le prix affiché n’inclut pas la prime d’assurance SCHL.

Vous aimez cette propriété?Partagez-la!

Nouvelles propriétés sur le marché qui pourraient vous intéresser

Vous cherchez la propriété de vos rêves? C’est par ici, et appelez-moi pour en savoir davantage ou planifier une visite !

+

Vos préférences en matière de cookies

Nous utilisons des cookies pour optimiser notre site web et collecter des statistiques d'utilisation.

Politique en matière de cookies